
Trao đổi công việc mọi lúc mọi nơi.
Bạn chưa có tài khoản? Hãy tạo một tài khoản.
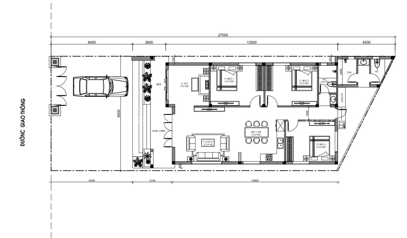
Thiết kế thi công nhà 1 tầng 112m2, kích thước đất 8x14m. Đã có thiết kế và bản vẽ thi công kèm phối cảnh đầy đủ. Cần nhà thầu qua khảo sát, tư vấn và báo giá chi tiết. Chi phí xây dựng khoảng 1 tỷ.
Hiện đại
Sân vườn
Vui lòng đăng nhập với vai trò Nhà thầu.
Mở App Alancer Connect